Kutscherwohnung
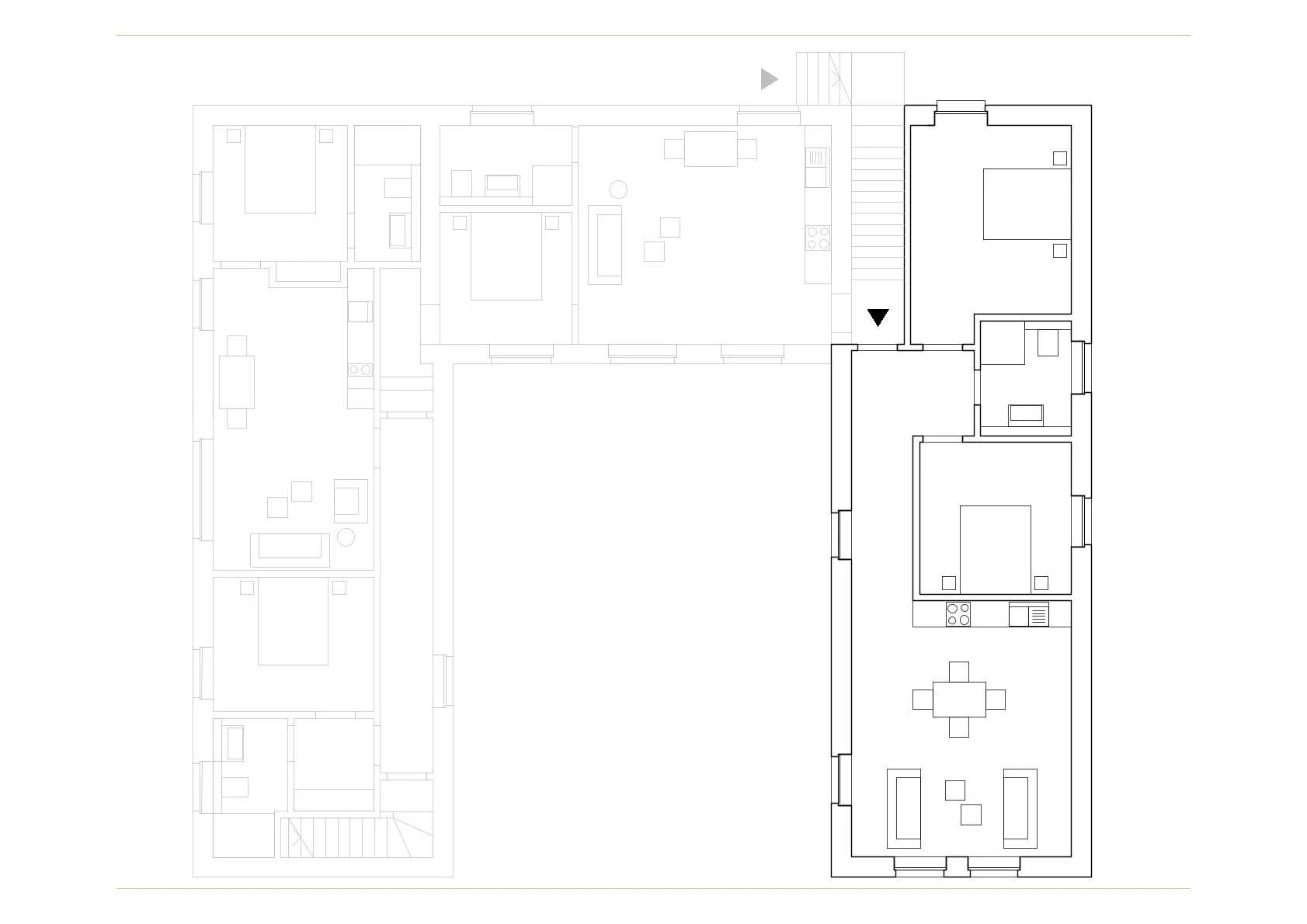
Diese Wohnung ist für 4 Personen geeignet. In der Wohnung befinden sich zwei Schlafzimmer (Doppelbett; 1,6m), ein Badezimmer, und ein großes Wohnzimmer mit Küche. Die Wohnung ist im Obergeschoss gelegen und über eine separate Treppe zu erreichen. Zusätzlich existiert ein direkter Zugang zum großzügigen Garten des Alleehauses mit Sitzgelegenheit und Tisch - umgeben vom Kriegshovener Bach.
Informationen
Küchenausstattung
Kühlschrank
Herd
Ofen (integrierte Mikrowelle)
Spülmaschine
Toaster
Wasserkocher
Geschirr & Besteck
Töpfe & Pfannen
Geschirrhandtücher
Sonstige Ausstattung
Wifi
Fernseher
Föhn
Kinderbett & Hochstuhl auf Anfrage
Die Wohnung kann auf Anfrage mit der Sattelkammer verbunden und von Familien oder Gruppen (2–4 Personen) genutzt werden.
Preise
250 Euro pro Nacht
(inklusive Endreinigung, Bettwäsche und Handtücher)
Ab einer Buchungsdauer von 7 Tagen gelten Sonderbedingungen (1250 Euro für eine Woche)
Weitere Einzelheiten auf Anfrage







